NETSCOUT AirMagnet Planner Integration Guide

This document describes how to use the AirMagnet Planner Application software to design wireless network locations for WatchGuard AP deployments.

This document only includes the planner features of the AirMagnet Survey Solution.

Platform and Software

The hardware and software used to complete the steps outlined in this document include:

  • AirMagnet Survey Solution Version 9.2 (Build 36843)
  • WatchGuard AP320 devices

AirMagnet AP Location Management

Create a New Project

  1. Open AirMagnet Survey Solution.
  2. Select File > New Project.

  1. In the Specify Project Name text box, type WatchGuard.
  2. For Project Type, select Non GPS Project.

  1. Click Next.
  2. Select Import Indoor Floor Plan Image.
  3. Navigate to your image and select it.
  4. From the Unit of Measurement drop-down list, select Meters.

  1. Click Next.
  2. Select Open Space Office - Cubicles, etc.

  1. Click Next.
  2. Click Finish.

  1. Click Yes for calibration.

  1. Click Yes to recalibrate after measuring.

  1. In the Recalibration dialog box, select Dual Direction Recalibration.
  2. In the Actual Distance text box, type the actual distance.
  3. Click Recalibrate.

  1. Click OK.

AP Location Assess

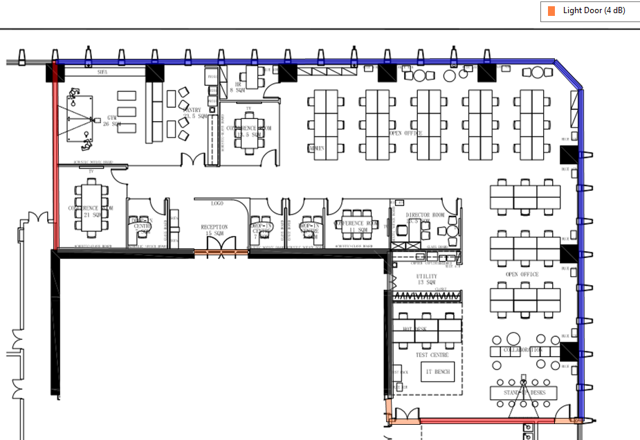
  1. Click to create a wall.
  2. Right-click to edit wall properties. Note that different wall materials have different dB drops.

  1. Click to create Arbitrary AP coverage area.

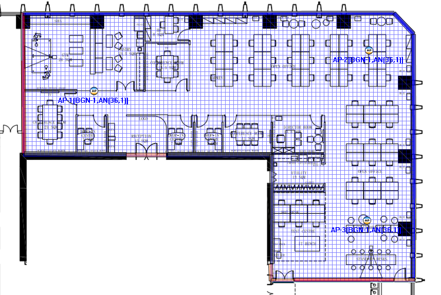
  1. Click to add AP devices.

  1. Right-click an AP device to edit its properties.
  2. Select the 2.4 GHz tab.
  3. From the Antenna drop-down list, select WatchGuard AP320 2.4GHz 6dBi A.
  4. Edit the other parameters as needed.

  1. Select the 5.0 GHz tab.
  2. From the Antenna drop-down list, select WatchGuard AP320 5GHz 6dBi A.
  3. Edit the other parameters as needed.

  1. Click OK.
  2. Click Refresh .
  3. View the results.

  1. Click on the map to check signal strength.

Auto Optimize AP Location

  1. Click Advisor .
  2. In the Advisor Criteria dialog box, edit the parameters as needed.

  1. Click OK.
  2. View the results.

Advisor is using Omni-Directional to optimize, so you must change the Antenna to WatchGuard AP320.

  1. Right-click each AP device to edit its parameters.
  2. Select the 2.4 GHz tab.
  3. From the Antenna drop-down list, select WatchGuard AP320 2.4GHz 6dBi A. Adjust the antenna direction if needed.
  4. Edit the other parameters as needed.

  1. Select the 5.0 GHz tab.
  2. From the Antenna drop-down list, select WatchGuard AP320 5GHz 6dBi A. Adjust the antenna direction if needed.
  3. Edit the other parameters as needed.

  1. Click OK.
  2. Click Refresh .
  3. View the results.

  1. Adjust the AP device location.
  2. Click Refresh .
  3. View the results.

  1. Click on the map to check signal strength.