WatchGuard WLAN-Ausleuchtung

Gilt für: WatchGuard Cloud-verwaltete Access Points (AP130, AP230W, AP330, AP332CR, AP430CR, AP432)

Das Wi-Fi-Design-Team von WatchGuard kann Sie bei der Anforderungsanalyse unterstützen und eine theoretische WLAN-Ausleuchtung erarbeiten, anhand der die ungefähre Anzahl der benötigten Access Points und deren Installationsorte für Ihre Bereitstellung bestimmt werden kann.

WatchGuard bietet ihren Partnern einen Fragebogen zu Wi-Fi-Anforderungen, in dem die Daten zusammengetragen werden, die für einen Bericht zur theoretischen WLAN-Ausleuchtung für die Bereitstellung erforderlich sind. Zur WLAN-Ausleuchtung gehören Informationen zur Dimensionierung im Hinblick auf die Anzahl und Typen der Access Points, die für das WLAN-Netzwerk erforderlich sind, und ein Raumplan mit empfohlener Access Point-Platzierung.

Bericht zur theoretischen WLAN-Ausleuchtung von WatchGuard

Um den Fragebogen aufzurufen, melden Sie sich bei Ihrem Partnerkonto auf der WatchGuard-Website an und gehen Sie zu Produkt > Vertrieb Secure Wi-Fi.

Fragebogen zu Wi-Fi-Anforderungen

Der Fragebogen zu Wi-Fi-Anforderungen beinhaltet mehrere Abschnitte über die Bereitstellung.

Einrichtung

Dieser Abschnitt betrachtet die physischen Merkmale der Einrichtung, in der das Wi-Fi-Netzwerk bereitgestellt werden soll. Hier sollten Sie möglichst viele konkrete Angaben machen, damit eine zutreffende theoretische WLAN-Ausleuchtung erfolgen kann.

  • Gebäudetyp (Büro, Schule, Einzelhandel, etc.)
  • Bereitstellung im Innen- oder Außenbereich
  • Länge und Breite des Etagenplans (zum Beispiel: 23 x 22 Meter)
  • Typ des Baumaterials für Wände, Decke, Türen und Fassade (zum Beispiel: Gipskarton, Zement, Glas, Metall, Ziegel usw.)

Benutzer und Anwendungen

Dieser Abschnitt erfordert detaillierte Informationen zu Anzahl und Typen der Benutzer und Anwendungen, die das WLAN-Netzwerk nutzen werden. Dies umfasst:

  • Gesamtzahl der Benutzer
  • Erwartete Anzahl gleichzeitiger WLAN-Benutzer
  • Höchste Benutzerdichte zum selben Zeitpunkt
  • Verwendete Anwendungen und Dienste (zum Beispiel: Internet, E-Mail, Audio, Video)
  • Geschätzter Bandbreitenverbrauch (zum Beispiel: 50 Mbit/s je Benutzer)

Strom

Dieser Abschnitt definiert die Anforderungen an die Energieversorgung, an das Kabelsystem und die Kapazität der Netzwerkgeräte:

  • Anforderungen an die Energieversorgung für Ihre Access Points, wie PoE, PoE+ und Verfügbarkeit von Netzadaptern.
  • Bandbreitenkapazität des Access Point Switch-Port (zwischen dem AP und dem Edge-Switch, zum Beispiel: 10 Gbit/s)
  • Bandbreitenkapazität des Uplink-Switch-Port (zwischen dem Edge-Switch und dem Core/Distribution Switch, zum Beispiel: 60 Gbit/s)

Montage der Access Points

Dieser Abschnitt beschreibt, wo und wie die Access Points installiert werden. Beispielsweise Wand- oder Deckenmontage für Access Points im Innenbereich oder Pfosten- oder Wandmontage für Access Points im Außenbereich.

Upload der Etagenpläne

Im letzten Abschnitt laden Sie die Etagenpläne oder Diagramme der Einrichtung Ihrer Bereitstellung hoch, bevor Sie den Fragebogen an WatchGuard absenden.

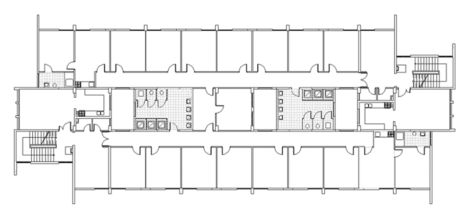
Beispiel für Etagenplan

Dies ist ein Beispiel der Art von Etagenplan, der einzureichen ist, damit das WatchGuard Wi-Fi-Designteam das WLAN-Netzwerk genau bemessen und entwerfen kann.

Achten Sie darauf, die Länge und Breite des Grundrisses im Abschnitt Einrichtung für die Dimensionierung des Netzwerks anzugeben.

Beispiel für Bericht über WLAN-Ausleuchtung

Dies ist ein Beispiel für einen Bericht über die WLAN-Ausleuchtung, den WatchGuard nach der Verarbeitung der Daten im Fragebogen zu Wi-Fi-Anforderungen erstellt.

Projektbeschreibung

  • Großraumbüros mit einigen abgeteilten Bereichen
  • Schwerpunkt auf 5-GHz-Spektrum und einen Mindest-RSSI-Wert von -65 dBm

Technische Spezifikationen

  • Anzahl Etagen — 2
  • Gesamtzahl Benutzer — 85
  • Gesamtzahl der gleichzeitigen Wi-Fi-Benutzer-Verbindungen — 100

Heatmap (Signalstärkeplan) nach Standort

WatchGuard erstellt vorhersagende Vermessungen anhand der im Anforderungsfragebogen zum Abdeckungsbereich gemachten Angaben. Die Access Point-Platzierung erfolgt dann auf Basis spezifischer HF-Algorithmen.

Ziel einer vorhersagenden Vermessung ist eine möglichst genaue Bestimmung der Anzahl und Installationsorte der Access Points, die für die Abdeckung eines bestimmten Bereichs erforderlich sind. Die genauen Access Point-Standorte müssen bei einer Begehung vor Ort durch eine WLAN-Ausleuchtung festgelegt werden.

Es werden Heatmaps sowohl für das 2,4- als auch das 5-GHz-Band erstellt. In diesem Beispiel zeigen wir das Erdgeschoss der Bereitstellung.